Gotowe wyceny kontenerów
Sprawdź gotowe wyceny kontenerów wraz z rzeczywistymi kosztami realizacji. Zobacz przykładowe projekty kontenerów mieszkalnych, biurowych i usługowych wraz z pełną specyfikacją techniczną, wyposażeniem oraz dokładną ceną wykonania. Każda wycena pokazuje realny zakres prac, materiały oraz układ funkcjonalny kontenera, dzięki czemu możesz łatwo oszacować koszt własnego całorocznego kontenera.
Kontener (7,5x4m) z klimatyzacją
Parametry techniczne
- Wymiary: 7,50 x 4,00 m
- Powierzchnia: 30 m²
- Wysokość wewnętrzna: 2,40 m ze spadkiem do 2,30 m
- Konstrukcja: rama stalowa profil 100x50x3 mm
- Ściany: płyta warstwowa PIR 100 mm
- Dach: płyta warstwowa PIR 100 mm
- Podłoga: płyta warstwowa 100 mm wzmocniona płytą OSB 10 mm
- Wykończenie podłogi: wykładzina PCV – imitacja paneli w kolorze siwym
Rozwiń
Stolarka i przeszklenia
- Witryna PCV 150 x 210 cm – 3 szt.
- Drzwi przeszklone na ramie aluminiowej 110 x 210 cm – 1 szt.
Wykończenie elewacji
- Lamele elewacyjne
- Układ: 2 słupki boczne + 1 attyka górna + 1 pasek lameli
- Kolor: ciemny brąz (orzech)
Instalacja elektryczna
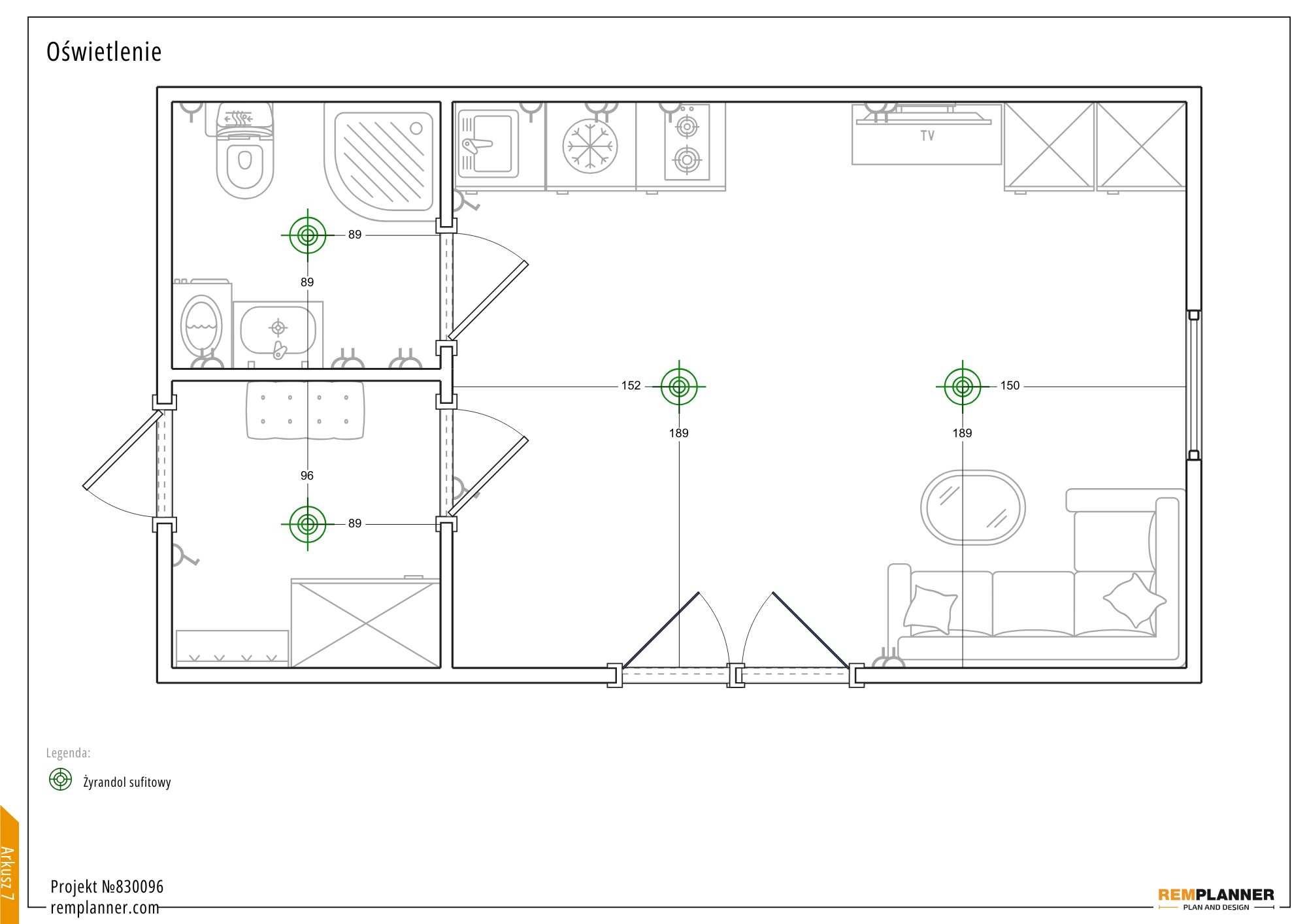
- 2 punkty świetlne – lampy LED
- 5 podwójnych gniazd elektrycznych
- Skrzynka z bezpiecznikami
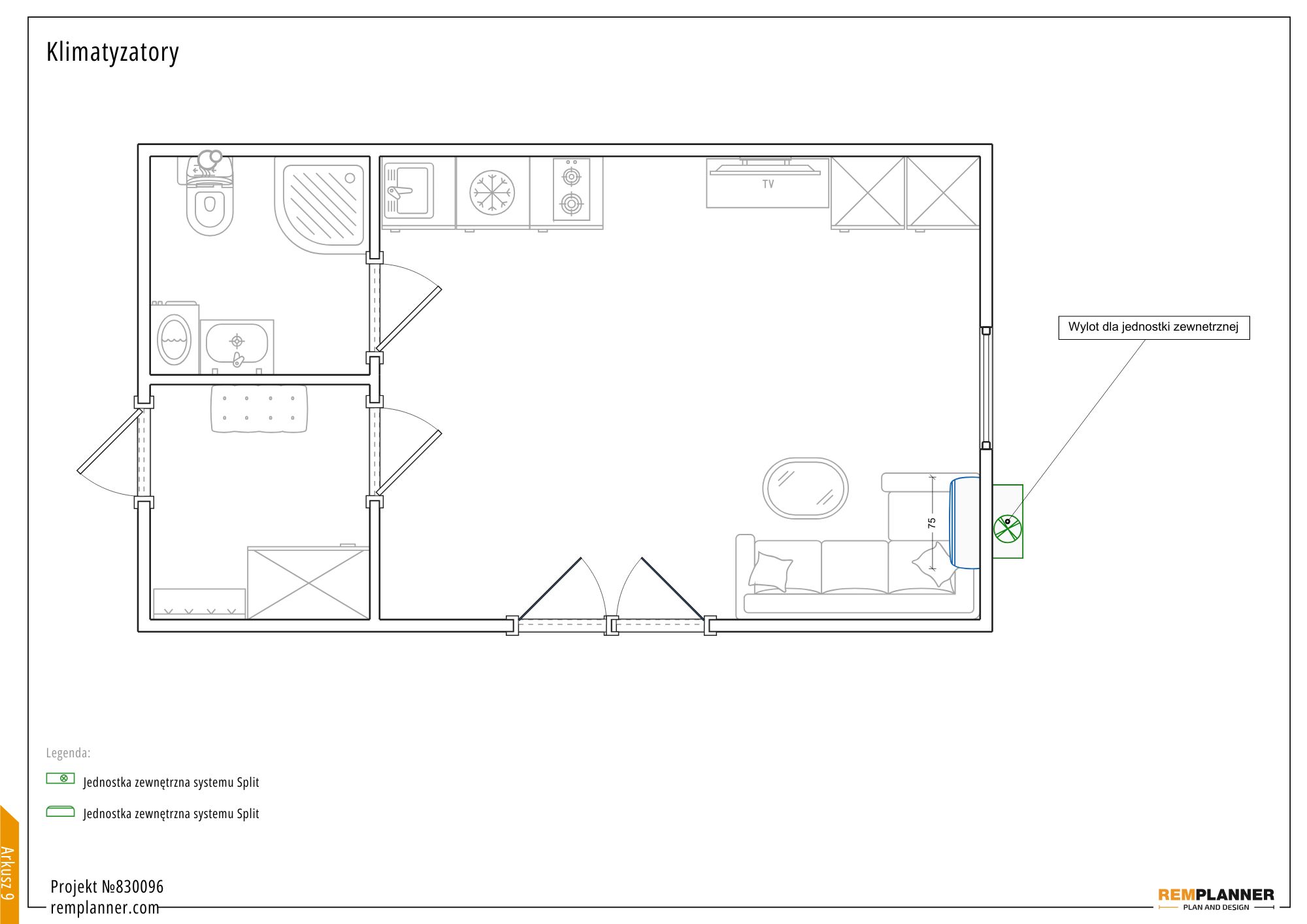
Ogrzewanie i klimatyzacja
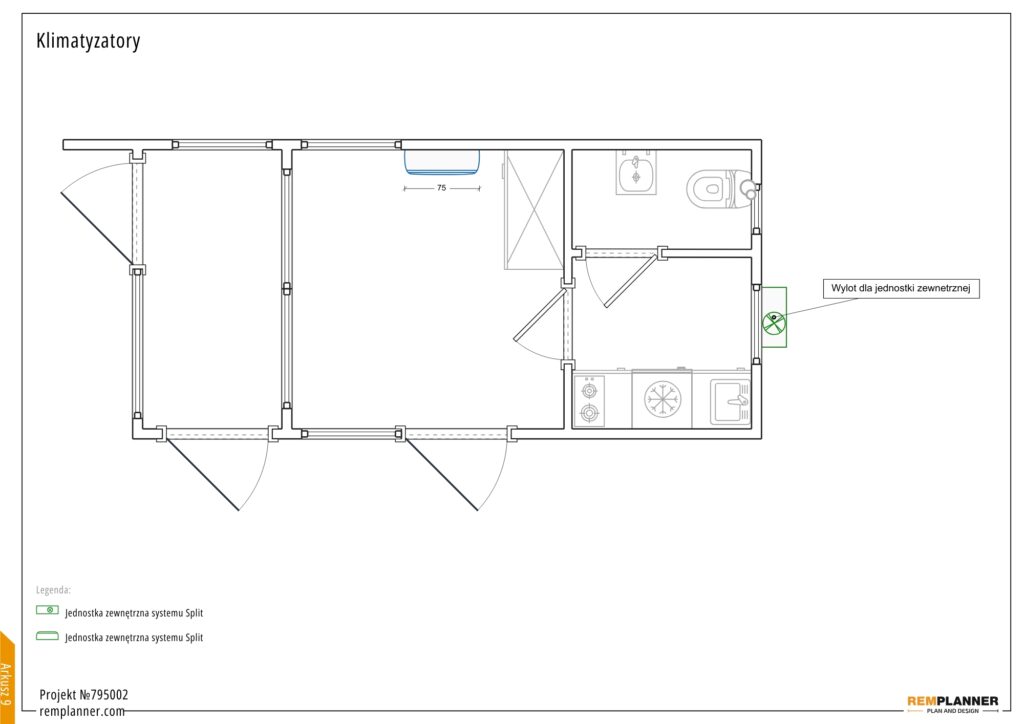
- Klimatyzacja 3,5 kW z funkcją grzania
Oświetlenie zewnętrzne
- 3 kinkiety zewnętrzne PREMIUM 9 x 120 cm
Cena konfiguracji: 57 200 zł netto.
Kontener (4x3m) z oknem wydawczym
Parametry techniczne
- Wymiary: 4,00 x 3,00 m
- Powierzchnia: 12 m²
- Wysokość wewnętrzna: 2,40 m ze spadkiem do 2,30 m
- Konstrukcja: rama stalowa 100x50x3 mm
- Ściany: płyta warstwowa PIR 100 mm
- Dach: płyta warstwowa PIR 100 mm
- Podłoga: płyta warstwowa 100 mm wzmocniona płytą OSB 10 mm
- Wykończenie podłogi: wykładzina PCV
Rozwiń
Stolarka i przeszklenia
- Drzwi przeszklone 110 x 210 cm – 2 szt.
- Witryna fix 120 x 120 cm – 4 szt.
- Okno wydawcze przesuwne 200 x 120 cm – 1 szt.
Wykończenie elewacji
- Lamele elewacyjne standard
- Układ: 2 słupki boczne + 1 attyka górna
- Kolor: Orzech (ciemny brąz)
Instalacja elektryczna
- 1 punkt świetlny – lampa LED
- 3 podwójne gniazda elektryczne
- Przełączniki
- Skrzynka z bezpiecznikami
Wentylacja
- Wentylacja grawitacyjna – 1 szt.
Cena konfiguracji: 35 900 zł netto.
Kontener (7x3m) z zapleczem socjalnym i klimatyzacją
Parametry techniczne
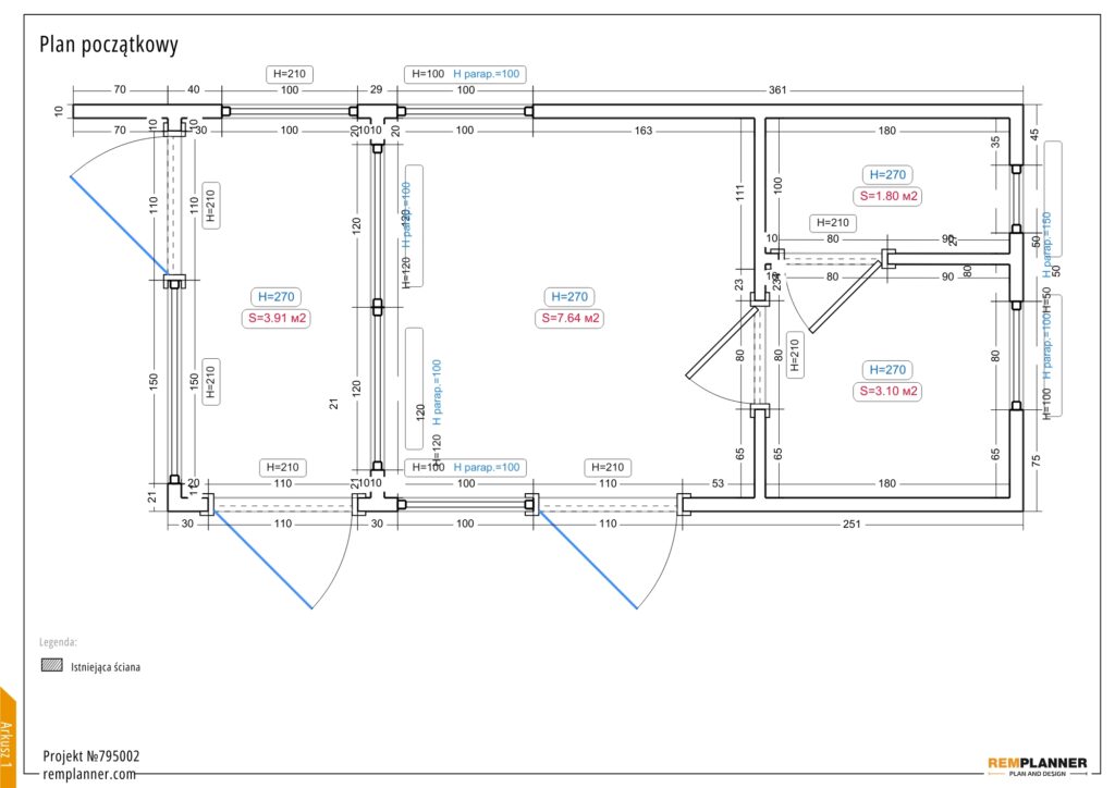
- Wymiary: 7,00 x 3,00 m
- Powierzchnia: 21 m²
- Wysokość wewnętrzna: 2,40 m ze spadkiem do 2,30 m
- Konstrukcja: rama stalowa
- Ściany: płyta warstwowa PIR 100 mm
- Dach: płyta warstwowa PIR 100 mm
- Podłoga: płyta warstwowa 100 mm wzmocniona płytą OSB 10 mm
- Wykończenie podłogi: wykładzina PCV
Rozwiń
Stolarka i przeszklenia
- Drzwi przeszklone aluminiowe 110 x 210 cm – 3 szt.
- Witryna fix 100 x 210 cm – 1 szt.
- Witryna fix 120 x 120 cm – 1 szt.
- Witryna fix 150 x 210 cm – 1 szt.
- Okno R-U 80 x 100 cm – 1 szt.
- Okno R-U 100 x 100 cm – 2 szt.
- Okno R-U 50 x 50 cm – 1 szt.
- Okno wydawcze przesuwne 120 x 120 cm – 1 szt.
- Parapet roboczy – 2,8 m
Wykończenie elewacji
- Kasetony elewacyjne standard
- Układ: 1 słupek boczny + 4 elementy attyki górnej
- Kolor: czerwony
- Wysunięcie daszku (typ stróżówka) 300 x 70 cm
Instalacja elektryczna
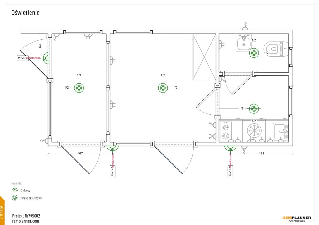
- 4 punkty świetlne – lampy LED
- 11 gniazd elektrycznych
- Skrzynka z bezpiecznikami
- 3 kinkiety zewnętrzne
- 2 punkty oświetlenia LED pod daszkiem
- Wyprowadzenie przewodu pod kamerę – 3 szt.
Ogrzewanie i klimatyzacja
- Klimatyzacja 3,5 kW z funkcją grzania – 1 szt.
- Grzejnik elektryczny + gniazdo – 1 szt.
- Grzejnik elektryczny drabinkowy (łazienka) + gniazdo – 1 szt.
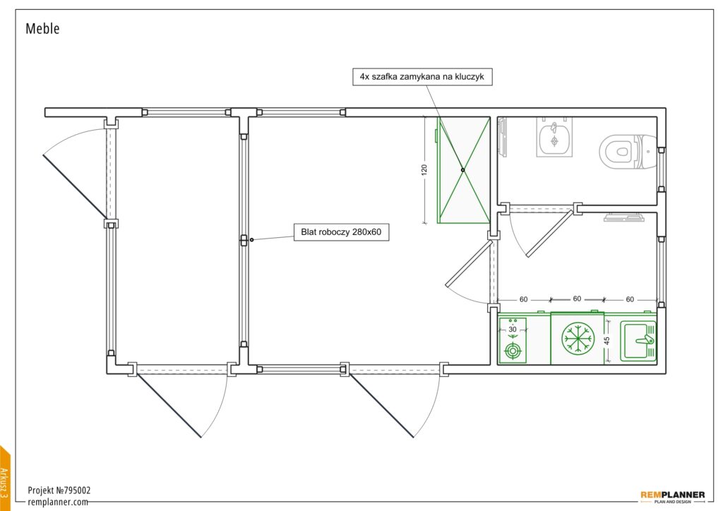
Układ wnętrza i zabudowy
- Wydzielenie pomieszczeń (ścianki działowe + drzwi MDF – 1 szt.)
- Blat pracowniczy 280 x 60 cm
- Szafa w zabudowie – 4 szafki zamykane na klucz
Funkcjonalny układ pozwala na podział strefy roboczej i zaplecza socjalnego.
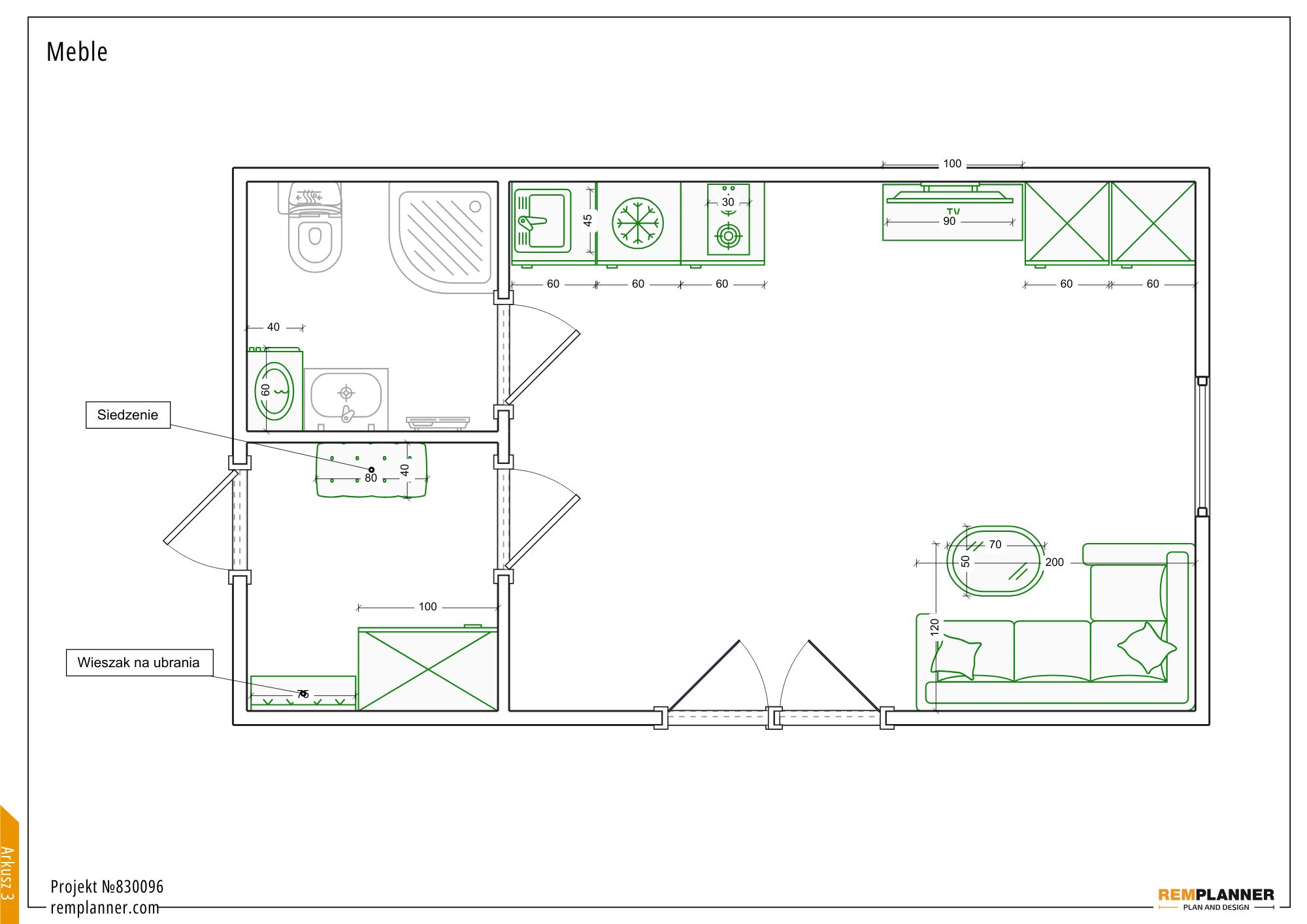
Aneks kuchenny – 1,8 mb
- Szafki górne i dolne
- Blat roboczy
- Zlewozmywak
- 2-palnikowa płyta grzewcza
- Lodówka podblatowa
- Mikrofala w zabudowie
- Okap
Kompletne WC
- Wykończone ściany
- Drzwi
- WC
- Umywalka z szafką
- Podgrzewacz wody
- Pełna instalacja wodno-kanalizacyjna
Cena konfiguracji: 88 000 zł netto.
Kontener (12x4m) z klimatyzacją i zapleczem
Parametry techniczne
- Wymiary: 12,00 x 4,00 m
- Powierzchnia: 48 m²
- Wysokość wewnętrzna: 2,70 m ze spadkiem do 2,60 m
- Konstrukcja: rama stalowa profil 100x50x3 mm
- Ściany: płyta warstwowa PIR 100 mm
- Dach: płyta warstwowa PIR 100 mm
- Podłoga: płyta warstwowa 100 mm wzmocniona płytą OSB 10 mm
- Wykończenie podłogi: wykładzina
- PCV – kolor popielaty
Rozwiń
Stolarka i przeszklenia
- Drzwi wejściowe pełne 90 x 210 cm – 1 szt.
- Okno PCV fix 100 x 210 cm – 5 szt.
- Okno PCV rozwierno-uchylne 100 x 210 cm – 2 szt.
Wykończenie elewacji
Elewacja standard
Lamele elewacyjne – 2 słupki boczne
Kolor: RAL 7035 (popielaty)
Kaseton elewacyjny – attyka górna
Kolor: RAL 9016 (biały)
Instalacja elektryczna
- 4 punkty świetlne – lampy LED
- 4 przełączniki
- 14 podwójnych gniazd elektrycznych
- Skrzynka z bezpiecznikami
Kinkiety LED Premium 8 x 100 cm – 2 szt.
Przyłącze trójfazowe 380 V
Instalacja wodno-kanalizacyjna
- 5 punktów wodno-kanalizacyjnych
- Wentylacja elektryczna – 1 szt. (łazienka)
Ogrzewanie i klimatyzacja
- Klimatyzacja 3,6 kW z funkcją grzania – 1 szt.
- Rurki instalacji wyprowadzone na zewnątrz przy dolnej części obiektu
Układ pomieszczeń
- Ściana działowa – 13 mb
- Drzwi wewnętrzne MDF 80 x 210 cm – 2 szt.
- Drzwi techniczne typu Hörmann 80 x 210 cm – 1 szt.
Cena konfiguracji: 99 900 zł netto.
Kontener (9x3m) z zapleczem socjalnym
Parametry techniczne
- Wymiary: 9,00 x 3,00 m
- Powierzchnia: 27 m²
- Wysokość wewnętrzna: 2,40 m ze spadkiem do 2,30 m
- Ściany: płyta warstwowa PIR 100 mm
- Dach: płyta warstwowa PIR 100 mm
- Podłoga: płyta warstwowa 100 mm wzmocniona płytą OSB 10 mm
- Wykończenie podłogi: wykładzina PCV – imitacja paneli w kolorze jasny brąz
Rozwiń
Stolarka i przeszklenia
- Drzwi przeszklone aluminiowe 110 x 210 cm – 1 szt.
- Witryna PCV 100 x 200 cm – 2 szt.
- Okno PCV rozwierno-uchylne 100 x 100 cm – 2 szt.
Wykończenie elewacji
- Lamele elewacyjne standard
- Układ: 2 słupki boczne + 1 attyka górna
- Kolor: orzech (ciemny brąz)
Instalacja elektryczna
- 2 punkty świetlne – lampy LED
- 3 podwójne gniazda elektryczne
- Skrzynka z bezpiecznikami
Wentylacja
- Wentylacja grawitacyjna – 1 szt.
Układ pomieszczeń
- Ścianka działowa – 3 mb (płyta PIR 80 mm)
- Drzwi wewnętrzne MDF 80 x 210 cm – 1 szt.
Cena konfiguracji: 47 200 zł netto.
Kontener (6x3m) z aneksem kuchennym i łazienką
Parametry techniczne
- Wymiary: 6,00 x 3,00 m
- Powierzchnia: 18 m²
- Wysokość wewnętrzna: 2,40 m ze spadkiem do 2,30 m
- Konstrukcja: rama stalowa
- Ściany: płyta warstwowa PIR 100 mm
- Dach: płyta warstwowa PIR 100 mm
- Podłoga: płyta warstwowa 100 mm wzmocniona płytą OSB 10 mm
- Wykończenie podłogi: wykładzina PCV drewnopodobna
Rozwiń
Stolarka i przeszklenia
- Drzwi przeszklone aluminiowe 110 x 210 cm – 1 szt.
- Witryna fix 100 x 210 cm – 2 szt.
- Okno rozwierno-uchylne 100 x 100 cm – 1 szt.
- Okno rozwierno-uchylne 50 x 50 cm – 1 szt.
Wykończenie elewacji
- Lamele elewacyjne standard
- Układ: 2 słupki boczne + 1 attyka górna
- Kolor: Winchester
Instalacja elektryczna
- 3 punkty świetlne – lampy LED
- 10 podwójnych gniazd elektrycznych
- Skrzynka z bezpiecznikami
Aneks kuchenny – 1,8 mb
- Szafki górne i dolne
- Blat roboczy
- Zlewozmywak z baterią
- Kuchenka indukcyjna dwupalnikowa
- Lodówka
- Okapnik
Kompletna łazienka
- Prysznic 90 x 90 cm
- WC
- Umywalka z szafką
- Bojler 100 L
- Drzwi do łazienki
- Pełna instalacja wodno-kanalizacyjna
Cena konfiguracji: 53 000 zł netto.
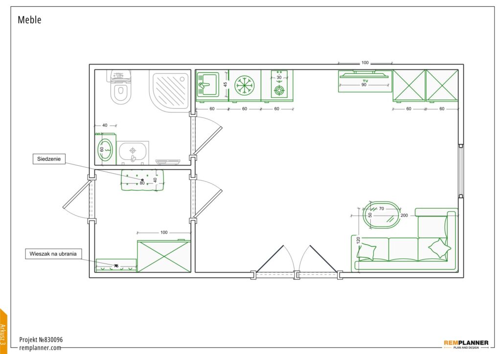
Kontener (7x4m) z łazienką i aneksem kuchennym
Parametry techniczne
- Wymiary: 7,00 x 4,00 m
- Powierzchnia: 28 m²
- Wysokość wewnętrzna: 2,60 m ze spadkiem do 2,50 m
- Ściany: płyta warstwowa PIR 120 mm
- Dach: płyta warstwowa PIR 120 mm
- Podłoga: płyta warstwowa 120 mm wzmocniona płytą OSB 10 mm
- Wykończenie podłogi: wykładzina PCV
Rozwiń
Stolarka i przeszklenia
- Drzwi wejściowe pełne 90 x 210 cm – 1 szt. (ciepłe)
- Okno balkonowe 160 x 210 cm – 1 szt. (trzyszybowe)
- Okno rozwierno-uchylne 100 x 100 cm – 1 szt. (trzyszybowe)
- Okno rozwierno-uchylne 50 x 50 cm – 1 szt. (trzyszybowe)
Wykończenie elewacji
- Lamele elewacyjne – 2,8 mb
- Lokalizacja: ściana o szerokości 4 m z oknem balkonowym
- Kolor: jasny brąz (Winchester)
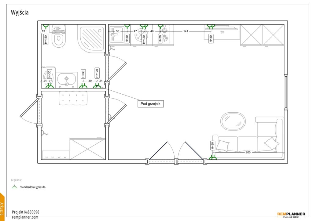
Instalacja elektryczna
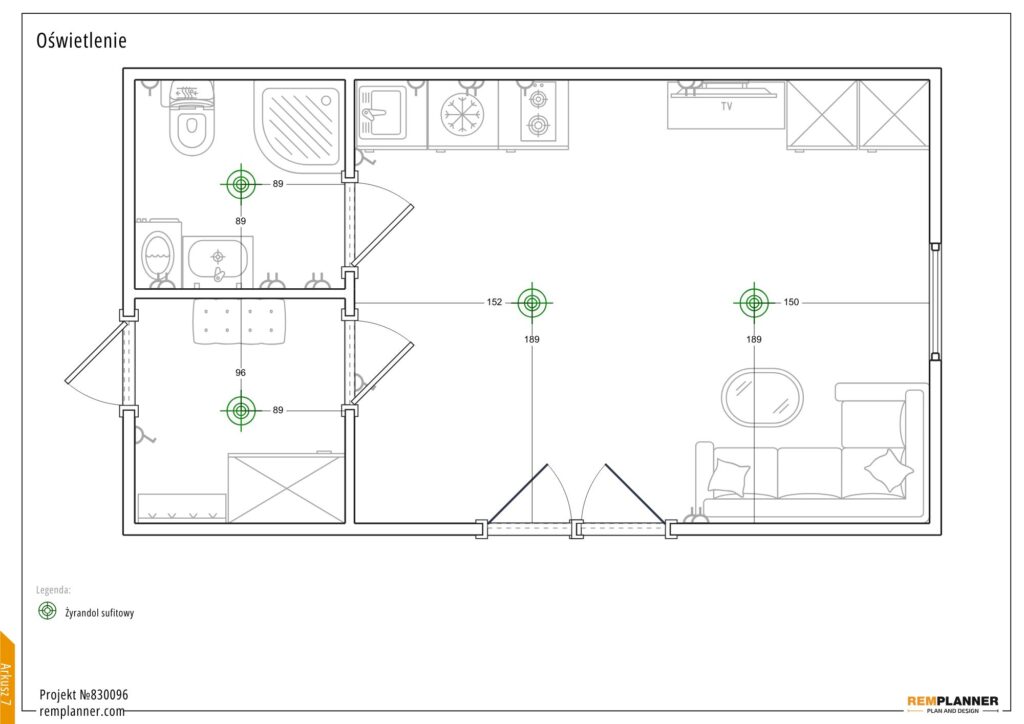
- 3 punkty świetlne – lampy LED
- 5 podwójnych gniazd elektrycznych
- Przełączniki
- Skrzynka z bezpiecznikami
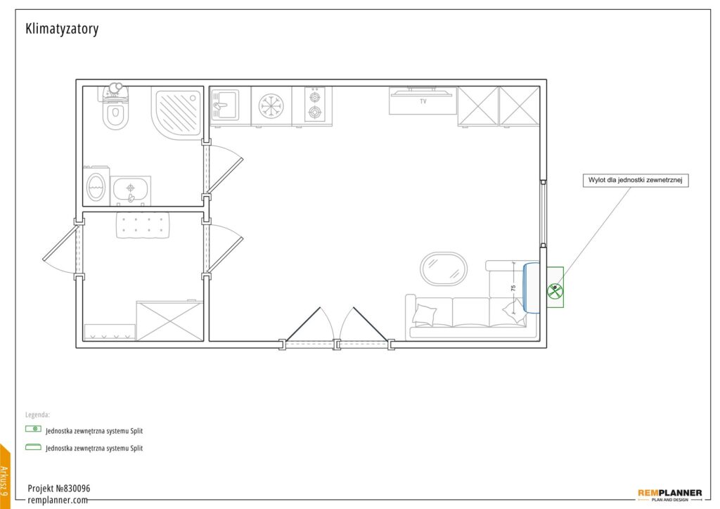
Wentylacja
- Wentylacja grawitacyjna – 1 szt.
- Grzejnik łazienkowy drabinkowy
- Klimatyzacja 3,5 kW z funkcją grzania
Układ pomieszczeń
Wydzielenie pomieszczenia – ścianka działowa
Drzwi wewnętrzne MDF
Układ pozwala na wydzielenie zaplecza sanitarnego oraz części użytkowej.
Aneks kuchenny -1,8mb
- Szafki górne i dolne
- Blat roboczy
- Zlewozmywak
- 2-palnikowa płyta grzewcza
- Lodówka
Kompletna Łazienka
- Ściany wykończone
- Drzwi MDF
- WC
- Umywalka z szafką
- Kabina prysznicowa
- Bojler
- Pełna instalacja wodno-kanalizacyjna
- Dodatkowy punkt wodno-kanalizacyjny – 1 szt.



















































































